MEPDrawing
Transform your vision into precise, professional MEP Drawings that serve as the foundation for exceptional construction projects.
Residential
Custom homes & renovations
Commercial
Office & retail spaces
Industrial
Manufacturing facilities
Institutional
Healthcare & education
Our Drawing Services
Comprehensive MEP Drawing solutions tailored to your project needs
Detailed MEP Drawings
Accurate and comprehensive MEP drawings for seamless project execution.
Architectural Drafting
High-quality architectural layouts for design clarity and better visualization.
HVAC System Design
Efficient heating, ventilation, and air-conditioning plans for optimal comfort.
Electrical Layouts
Safe and optimized wiring and circuit designs for electrical systems.
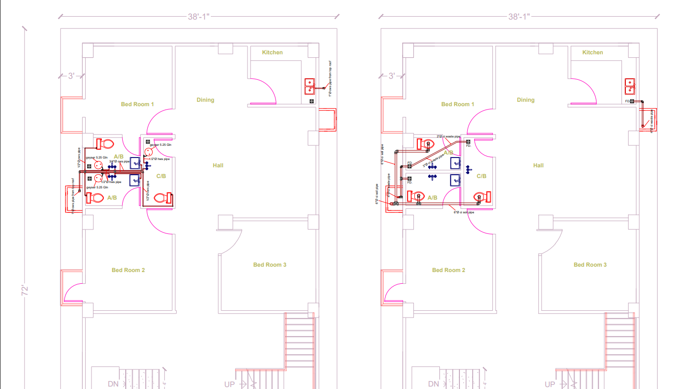
Plumbing Schematics
Clear layouts for water supply, drainage, and piping systems.
As-Built Documentation
Accurate records of existing structures for future reference or renovations.
Why Choose Our Drawing Services
Professional MEP Drawings that deliver precision, compliance, and exceptional value
Precision & Accuracy
Eliminate construction errors through precise dimensioning and standardized symbols.
Code Compliance
Drawings prepared in accordance with local building codes and regulations.
Cost Control
Detailed drawings enable accurate cost estimation and prevent budget overruns.
Clear Communication
Universal language that facilitates communication between all stakeholders.
Our Design Process
A collaborative approach that ensures your vision is transformed into precise MEP Drawings
Initial Consultation
We begin with a comprehensive consultation to understand your vision, requirements, and project goals. Our team analyzes site conditions, zoning requirements, and design preferences to establish a solid foundation for the project.
What We Discuss
- Project scope and objectives
- Budget and timeline
- Design preferences
- Site analysis
Concept Development
Our design team creates initial concept drawings and sketches that capture your vision. We explore different design options, spatial arrangements, and MEP Drawing styles to find the perfect solution for your project.
Design Exploration
- Conceptual sketches
- Space planning
- Design alternatives
- Client feedback
Detailed Design
Once the concept is approved, we develop detailed MEP Drawings including floor plans, elevations, sections, and construction details. Every element is carefully designed and documented for construction.
Technical Documentation
- Detailed floor plans
- Elevation drawings
- Section drawings
- Construction details
Review & Delivery
Final review and quality assurance ensure all drawings meet project requirements and building codes. We deliver complete drawing sets ready for permitting and construction, with ongoing support throughout the project.
Quality Assurance
- Technical review
- Code compliance check
- Drawing coordination
- Final delivery
Ready to Start Your Project?
Contact us today to discuss your MEP Drawing needs and discover how Skyhooks can transform your vision into reality through exceptional design and technical excellence.
Our MEP Plan
Explore the strength and precision behind our MEP Drawing projects.

View MEP Plan 1

View MEP Plan 2

View MEP Plan 3

View MEP Plan 4

View MEP Plan 5

View MEP Plan 6

View MEP Plan 7

View MEP Plan 8